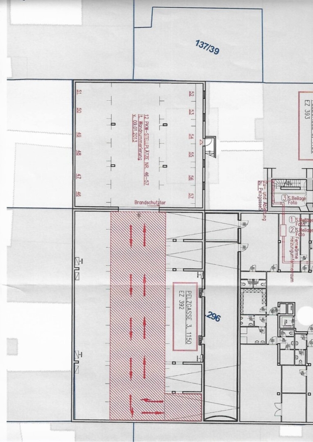
Zum Verkauf steht eine abgeschlossene Garagenfläche mit insgesamt 282 m² in einer privaten Tiefgarage direkt beim Westbahnhof, die als Oldtimer Garage genutzt wurde.
Die Einheit umfasst Wohnungseigentum an 12 Stellplätzen, die sich innerhalb eines eigenständig abgeschlossenen Garagenbereichs befinden. Dadurch ergibt sich die exklusive Nutzung der gesamten Fläche von rund 282 m².
Neben den 12 offiziellen Stellplätzen bietet die Fläche zusätzlich Platz für mindestens 6 weitere Fahrzeuge und ausreichend Platz für Zubehör.
Ausstattung
•
abgeschlossener Garagenbereich
•
Steckdosen bei allen Stellplätzen (z. B. für Batteriewächter)
•
Jablatron Alarmanlage (App-steuerbar)
•
2 IR-Kameras mit Videoaufzeichnung über WLAN
•
zwei versperrbare Schlüsselsafes
•
Kaltwasser- und Kanalanschluss
•
Brandschutz-Schiebetor
•
gute Belüftung, belichtet und trocken
Eine Wallbox für ein E-Fahrzeug kann bei Bedarf installiert werden.
Das Brandschutz-Schiebetor kann bei Bedarf elektrifiziert und ferngesteuert werden.
Betriebskosten
Die Betriebskosten werden nach den 12 gewidmeten Stellplätzen berechnet.
Aktuelle Vorschreibung (ab 01/2026):
•
EUR 11,38 pro Stellplatz inkl. Rücklage und USt
➡️ Gesamt: EUR 136,56 / Monat
Inkludiert sind u. a.:
•
Brandschutz
•
Wartung der Tore
•
Allgemeinstrom (Beleuchtung etc.)
Die Garage ist nicht beheizt, jedoch gut belüftet und trocken.
Optional im selben Haus verfügbar
Zusätzlich könnten erworben werden:
Bürofläche im Erdgeschoss
•
ca. 73 m²
•
Gewerbliche Widmung
•
Einbaumöbel, Badezimmer, Tischlerküche
•
Preis: EUR 345.000
Lagerflächen
•
ca. 11 m² und 14 m²
•
trocken und mit Scherengitter gesichert
•
EUR 1.500 / m²
Hinweis: eine Lagerfläche wird nur in Verbindung mit dem Büro verkauft.
Wir weisen darauf hin, dass zwischen dem Vermittler und dem zu vermittelnden Dritten ein familiäres oder wirtschaftliches Naheverhältnis besteht.
Der Vermittler ist als Doppelmakler tätig.
Infrastruktur / Entfernungen
Gesundheit
Arzt <175 m
Apotheke <225 m
Klinik <425 m
Krankenhaus <975 m
Kinder & Schulen
Schule <100 m
Kindergarten <250 m
Universität <550 m
Höhere Schule <900 m
Nahversorgung
Supermarkt <150 m
Bäckerei <150 m
Einkaufszentrum <600 m
Sonstige
Geldautomat <150 m
Bank <150 m
Post <125 m
Polizei <275 m
Verkehr
Bus <100 m
U-Bahn <175 m
Straßenbahn <250 m
Bahnhof <225 m
Autobahnanschluss <4.675 m
Angaben Entfernung Luftlinie / Quelle: OpenStreetMap