Befahrbare Lagerfläche (282 m²) mit perfektem Grundriss und geringen BKs – direkt beim Westbahnhof

1150 Wien, Lager zum Kauf

Kontaktdaten

Elisabeth Raab, RAAB & RAAB Makler/innen Immobilien GmbH

Objektdaten

  • Objekt-ID
    3222
  • Objekttypen
    Industrie / Gewerbe, Lager
  • Adresse
    Pelzgasse 5
    1150 Wien
    Wien
  • Lagerfläche ca.
    282 m²
  • Maximalmietdauer
    unbefristet
  • Verfügbar ab
    sofort
  • Käufer­provision
    17.820,00 € inkl. 20 % USt.
  • Monatliche Kosten netto
    113,80 EUR
  • Monatliche Kosten MwSt.
    22,76 EUR
  • Kaufpreis
    495.000 EUR
  • Betriebskosten netto
    113,80 EUR
  • Betriebskosten MwSt.
    22,76 EUR

Ausstattung / Merkmale

  • ✓ Barrierefrei
  • ✓ Neubau

Objekt­beschreibung

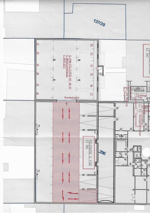
Suchen Sie nach der perfekten Lösung für Ihr Lager, Ihren Fuhrpark, Ihre Oldtimer-Sammlung oder Ihr Archiv in zentraler Lage? Wir bieten Ihnen eine seltene Gelegenheit: Eine ca. 282 m² große, trockene und bestens belüftete Fläche, die durch ihre Befahrbarkeit überzeugt.

Die Highlights auf einen Blick:


Großzügige Fläche: Ca. 282 m² Nutzfläche, rechteckig und effizient geschnitten, ohne störende Wände.


Befahrbar: Direkt mit dem PKW oder Transporter befahrbar – ideal für bequemes Be- und Entladen (205 cm Durchfahrtshöhe).


Trocken & sicher: Ein geschlossener, versperrbarer Bereich, der Ihre Güter schützt (Jablatron Alarmanlage (App-steuerbar)2 IR-Kameras mit Videoaufzeichnung über WLAN, zwei versperrbare Schlüsselsafes)


Optimale Bedingungen: Trocken und gut belüftet.


E-Ladestation kann bei Bedarf eingebaut werden.


Wirtschaftlich: Extrem günstige Betriebskosten im Vergleich zu klassischen Gewerbeflächen.


Bonus-Option: Im selben Gebäude sind bei Bedarf auch Büroflächen verfügbar – kombinieren Sie Ihr Lager optimal mit Ihrem Firmensitz.

Diese Fläche eignet sich hervorragend für Unternehmen, die einen zentralen Knotenpunkt für ihre Warenlogistik suchen, oder für private Sammler, die Wert auf Sicherheit und Komfort legen.

Interessiert? Nutzen Sie diese Gelegenheit, sich eine rare, befahrbare Fläche in Wien zu sichern. Gerne zeigen wir Ihnen die Räumlichkeiten bei einem persönlichen Besichtigungstermin.

Rechtlicher Hinweis: Das angebotene Objekt ist derzeit als Tiefgaragen-Abschnitt mit 12 Stellplätzen gewidmet. Der Käufer erwirbt das Objekt im aktuellen Zustand. Eine etwaige Nutzungsänderung (z.B. als reines Lager oder gewerbliche Nutzung) obliegt dem Käufer; hierfür erforderliche Genehmigungen, bauliche Anpassungen oder Umwidmungen sind durch den Käufer bei den zuständigen Behörden eigenverantwortlich abzuklären.

Hinweis gemäß Energieausweisvorlagegesetz: Ein Energieausweis wurde vom Eigentümer bzw. Verkäufer, nach unserer Aufklärung über die generell geltende Vorlagepflicht, sowie Aufforderung zu seiner Erstellung noch nicht vorgelegt. Daher gilt zumindest eine dem Alter und der Art des Gebäudes entsprechende Gesamtenergieeffizienz als vereinbart. Wir übernehmen keinerlei Gewähr oder Haftung für die tatsächliche Energieeffizienz der angebotenen Immobilie.

Wir weisen darauf hin, dass zwischen dem Vermittler und dem zu vermittelnden Dritten ein familiäres oder wirtschaftliches Naheverhältnis besteht.

Der Vermittler ist als Doppelmakler tätig.

Infrastruktur / Entfernungen

Gesundheit
Arzt <175 m
Apotheke <225 m
Klinik <425 m
Krankenhaus <975 m Kinder & Schulen
Schule <100 m
Kindergarten <250 m
Universität <550 m
Höhere Schule <275 m Nahversorgung
Supermarkt <150 m
Bäckerei <150 m
Einkaufszentrum <600 m Sonstige
Geldautomat <150 m
Bank <150 m
Post <125 m
Polizei <275 m Verkehr
Bus <100 m
U-Bahn <175 m
Straßenbahn <250 m
Bahnhof <225 m
Autobahnanschluss <4.675 m Angaben Entfernung Luftlinie / Quelle: OpenStreetMap

Direktanfrage

* Pflichtangaben
 SSL-verschlüsselt
Immobiliendaten-Import und Darstellung für WordPress: WP-ImmoMakler